$928,400
5 Beds | 4 Baths | 4,610 sqft
1511 Liberty Park Road, Lot 46
Media Image 1
Media Image 2
Media Image 3
$928,400
PENDING - CONTINUE TO SHOW
1511 Liberty Park Road, Lot 46, Knoxville, TN 37922
5 Beds
4 Baths
4,610 SqFt
About This Home

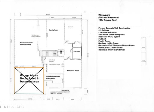
COMPLETION MID-DECEMBER! Act now for the opportunity for design collaboration on Winterpark floorplan with master and guest rooms on main, with a finished 1800 sqft basement!! The finished basement will feature soaring 10' ceilings, dedicated Hvac system, LVP flooring, bedroom #5, full bath, SAFE ROOM, family room, rec room, huge mechanical/storage room, media room ...

Continue reading
Snapshot
  • Price:
  • $928,400
  • Bedrooms:
  • 5
  • Total Baths:
  • 4
  • Full Baths:
  • 4
  • Square Footage:
  • 4,610
  • Acreage:
  • 0.17
  • Year Built:
  • 2026
  • Listing ID #:
  • 1329442
  • Street Address:
  • 1511 Liberty Park Road, Lot 46
  • City:
  • Knoxville
  • State:
  • TN
  • Postal Code:
  • 37922
  • County:
  • Knox County - 1
  • Community:
  • Knox County - 1
  • Subarea:
  • Knox County - 1
  • Subdivision:
  • The Heritage At Bluegrass
  • Listing Status:
  • Pending - Continue To Show
  • Listing Type:
  • Single Family
  • Special Code:
  • False
Ask David Rowan
Schools
Source: ATTOM
Ask David Rowan
Building
Land
Listing
Money
Rooms
Structures
Systems
Source
Listing Provided By: Susy Yeatman 865-742-4283 with Oak & Iron Realty
Average Mortgage Rates in U.S.*
Loading Content...
Ask David Rowan
OBMMI™ is powered by Powered By Optimal Blue
Last updated: 03/12/2026
*OPTIMAL BLUE MORTGAGE MARKET INDICES - Calculated from actual locked rates with consumers across more than one-third of all mortgage transactions closed nationwide, OBMMI provides multiple mortgage pricing indices developed around the most popular mortgage products and specific borrower attributes and provides configurable trending of rates over time.
Estimate Your Mortgage
Source: Etta Home Search
Ask David Rowan
David Rowan
Can Answer Your Questions